联系人:王经理
手机:17710710367
电话:17710710367
邮箱:706434991@qq.com
地址:北京市通州区通朝大街192号总店
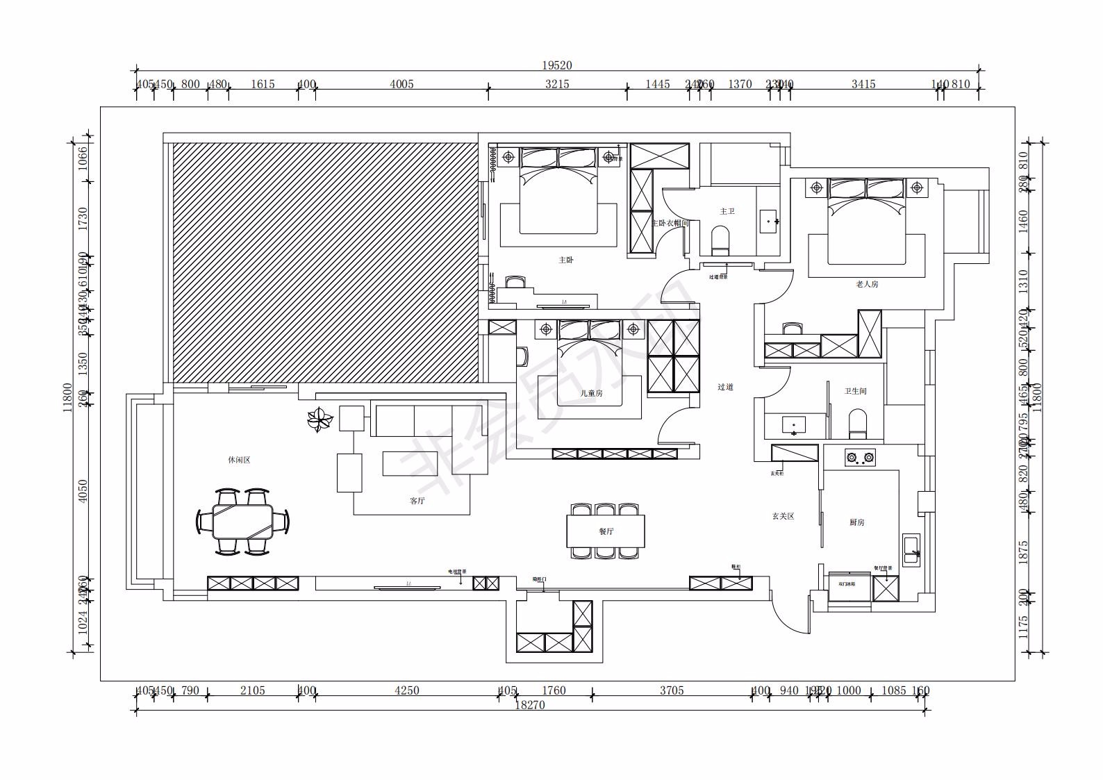
全屋户型图
四口之家,两个可爱的儿子。业主的设计诉求是,低调奢华而又不失沉稳大气。 业主家之前的装修风格是简欧风,欧式的软包,护墙板,水晶灯,米黄的碎花墙布,是2000年到2015年以来简欧风的老套搭配元素! 进去就给人以压抑感,沉闷感。这次设计,我采用黑白灰的搭配手法,加入金色的元素,整个空间效果,清爽明亮,沉稳大气,而又不失低调奢华!
客厅
新房在奢华的同时要加入中式的元素,让它更有文化底蕴
新房在奢华的同时要加入中式的元素,让它更有文化底蕴
新房在奢华的同时要加入中式的元素,让它更有文化底蕴
新房在奢华的同时要加入中式的元素,让它更有文化底蕴
新房在奢华的同时要加入中式的元素,让它更有文化底蕴
新房在奢华的同时要加入中式的元素,让它更有文化底蕴
新房在奢华的同时要加入中式的元素,让它更有文化底蕴
卫生间
浴室里没有多余的装饰,却能兼具美感与功能性,达到疏密有致的布局设计效果,让人达到心灵的放空,无形之中,为居者营造出一种安静舒适的私密空间。
餐厅
收纳柜面与餐桌均采用岩板定制,美观与实用并存,无处不彰显着主人的精致品位。
收纳柜面与餐桌均采用岩板定制,美观与实用并存,无处不彰显着主人的精致品位。














客服1